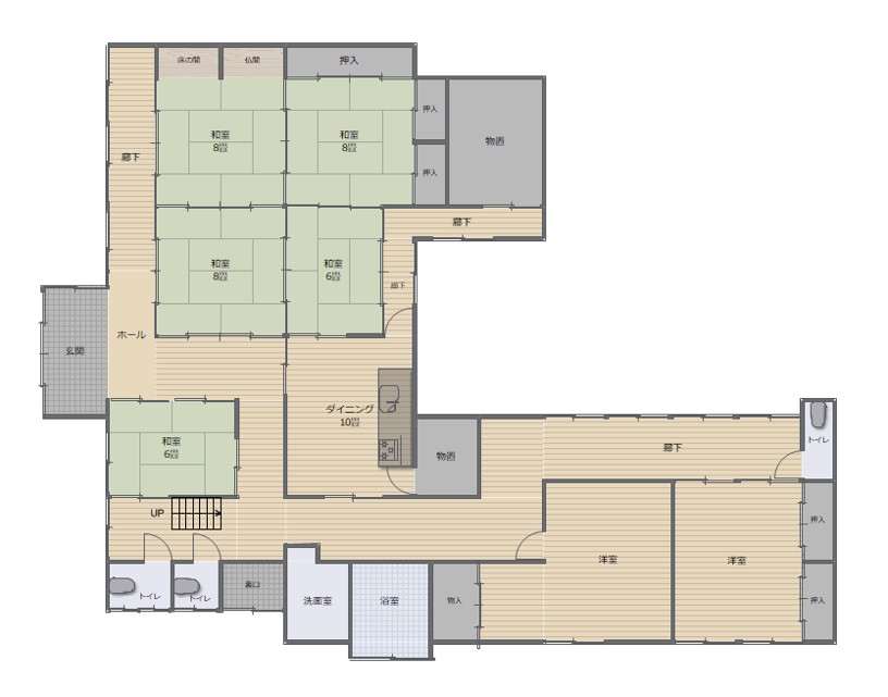
西蒲区東中の11DKの農家住宅となります。敷地内、納屋およびビニールハウスがあります。
敷地北側の公道に面しておりますが、南側公道(消雪パイプあり)まで共有通路(舗装あり)を通って利用することも可能です。
隣接地に畑がありますが、農業従事者の方であれば譲渡も可能です。


2025.10.20
西蒲区東中の11DKの農家住宅となります。敷地内、納屋およびビニールハウスがあります。
敷地北側の公道に面しておりますが、南側公道(消雪パイプあり)まで共有通路(舗装あり)を通って利用することも可能です。
隣接地に畑がありますが、農業従事者の方であれば譲渡も可能です。



2023.01.10
アーバンハウス新潟の公式LINEアカウント。 週1回程度、...

2026.03.09
巻甲12区の中古住宅です。接面通路は建築基準法上の道路ではありま...

2026.02.20
新潟市西蒲区巻甲(東6区) 売地の情報を公開しました。ぜひご検討...

2026.01.23
巻駅 徒歩約13分、敷地約183坪の6DKの住宅になります。敷地...

2026.01.05
巻東6区、巻駅まで徒歩約11分の約90坪の住宅用地になります。商...
-140x140.jpg)
2025.12.27
部屋数が多く、敷地も広いためグループホームやショートステイなどの...

2025.11.05
曽根小学校まで徒歩4分、車で3分圏内にスーパー・病院もあり住みや...