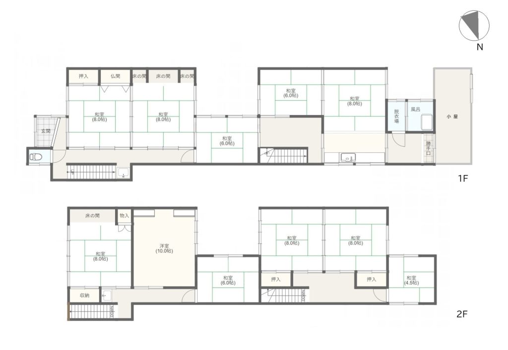
部屋数が多く、敷地も広いためグループホームやショートステイなどの施設に、また投資物件としても最適。岩室駅徒歩10分。

2025.12.27

2023.01.10
アーバンハウス新潟の公式LINEアカウント。 週1回程度、...

2026.01.13
新潟市西蒲区巻甲(東6区) 売地の情報を公開しました。ぜひご検討...

2026.01.05
巻東6区、巻駅まで徒歩約11分の約90坪の住宅用地になります。商...

2025.11.05
曽根小学校まで徒歩4分、車で3分圏内にスーパー・病院もあり住みや...

2025.10.21
巻駅徒歩約15分、敷地約42坪の住宅用地になります。スーパー、小...

2025.10.21
住宅(119.77㎡)に作業所(61.93㎡)が併設されている物...

2025.10.20
東中エリアの中古住宅。 建物面積約110坪、8LDKと広々とし...