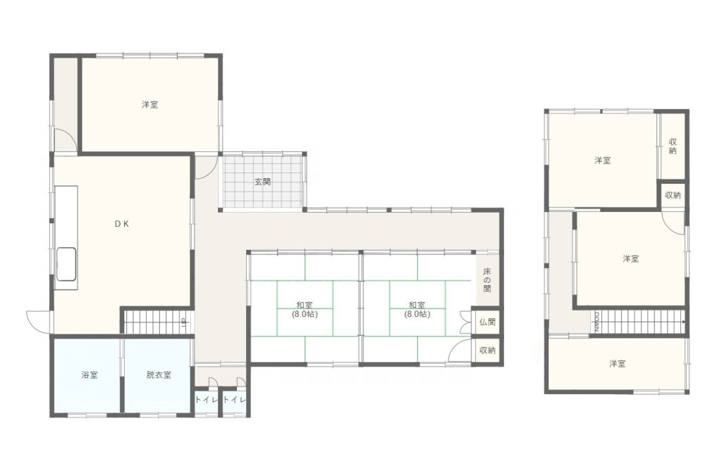
巻駅 徒歩約13分、敷地約183坪の6DKの住宅になります。敷地内、駐車4台可能。南側に広い庭があります。(敷地内 未登記の小屋あり)

2026.01.23

2023.01.10
アーバンハウス新潟の公式LINEアカウント。 週1回程度、...

2026.01.13
新潟市西蒲区巻甲(東6区) 売地の情報を公開しました。ぜひご検討...

2026.01.05
巻東6区、巻駅まで徒歩約11分の約90坪の住宅用地になります。商...
-140x140.jpg)
2025.12.27
部屋数が多く、敷地も広いためグループホームやショートステイなどの...

2025.11.05
曽根小学校まで徒歩4分、車で3分圏内にスーパー・病院もあり住みや...

2025.10.21
巻駅徒歩約15分、敷地約42坪の住宅用地になります。スーパー、小...

2025.10.21
住宅(119.77㎡)に作業所(61.93㎡)が併設されている物...