2025.12.27
-540x393.jpg)

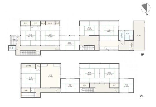
部屋数が多く、敷地も広いためグループホームやショートステイなどの施設に、また投資物件としても最適。岩室駅徒歩10分。
■ 所在地 :新潟県新潟市西蒲区和納2丁目24-2
■ 土地面積:414.32㎡ / 125.33坪
■ 建物面積:222.16㎡
■ 築年月 :1973年 1月 (築52年)
■ 構造 :木造2階建て
■ 間取り :10DK
販売価格:180万円(税込)
【交通】越後線 岩室駅 徒歩10分
【引渡】則時
【現況】空家
【地目】宅地
【建ぺい率】60%
【容積率】200%
【土地権利】所有権
【都市計画】市街化区域
【用途地域】第一種住居
【取引態様】専任媒介
【設備】公営水道、公共下水、都市ガス
【学区】和納小、岩室中
【管理コード】263