2025.11.05



曽根小学校まで徒歩4分、車で3分圏内にスーパー・病院もあり住みやすい環境です。
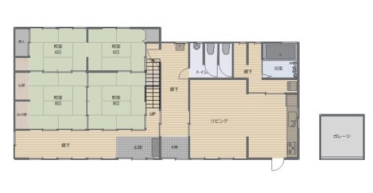
敷地広く駐車3台以上可能、シェアハウスのような使用方法もおすすめです。
■ 所在地 :新潟県新潟市西蒲区曽根530-2
■ 土地面積:372.73㎡ / 112.75坪
■ 建物面積:165.27㎡
■ 築年月 :1967年 6月 (築58年)
■ 構造 :木造2階建て
■ 間取り :6LDK
販売価格:350万円(税込)
【交通】越後線 越後曽根駅 徒歩9分
【引渡】相談
【現況】空家
【地目】宅地
【建ぺい率】60%
【容積率】200%
【土地権利】所有権
【都市計画】市街化区域
【用途地域】第二種住居
【取引態様】専任媒介
【設備】公営水道、都市ガス、電気
【学区】曽根小、西川中
【管理コード】255